Stage 1 of works which was completed in May 2020, included:
- The upgrade of the northern field to synthetic turf, widening it to 105m x 68m in line with Football NSW and FIFA recommendations for professional football
- Construction of a 17m x 68m synthetic warm up area
- Lighting design that supports NPL1 level of play
- Spectator and boundary fence lines
- Spectator seating
Stage 2 of works included:
- The upgrade of the southern 2 fields with new turf, drainage and irrigation
- Installation of a stormwater reuse tank
- Upgraded sports field lighting
- Spectator seating
- 3 lane cricket practice nets
- New cricket pitch
- Lighting design and upgrade
- Spectator fence lines
- Relocation and upgrade of South Street car park
- Upgrade of northern carpark off Park Street
- Tree planting and tree retention
- Picnic tables
- Bubblers
- Accessible paths around the entirety of the field
Council engaged an external specialist consultant in 2017 to facilitate consultation with the community to develop the draft masterplan:
- Community Consultation - October 2017
- Large promotional campaign
- Community Listening Post (30 attendees - the community was invited to attend a park based listening post with complimentary coffee, popcorn, jumping castle and horizontal bungee!)
- Community forum (21 attendees - in person)
- Drop-in visits to local retailers
- Public Exhibition - November 2018
- Promotional campaign
- Community drop-in session at Rydalmere Park
- Community drop-in session at Ermington Shops
- Online survey (33 responses)
- Email submissions (6)
In March 2019, Council facilitated a Community Reference Group, and then in July 2019 the Rydalmere Park Masterplan was endorsed by Council. You can review the community consultation reports in the resource section.
The delivery of the Rydalmere Park Masterplan (pages 42) is split into 8 stages with indicative costings – these stages act as a guide for delivery and costings are high level estimates at the time of writing the masterplan.
Council has not been working to the stages outlined in the masterplan, but has been fast tracking elements where funding is made available.
In 2019, Council applied for and was successful in obtaining a $5 million grant from the Office of Sports to assist in the delivery of sports infrastructure at Rydalmere Park.
The scope of the grant was essentially to deliver football and cricket infrastructure at the northern and southern ends of the park (stages 1 and 8 of the Masterplan).
Council has also contributed $6.6 million, so stages 3, 5, and 7 have also been fast tracked for delivery, and early work on a design for stage 2 is also being initiated.
It should also be noted that Council has attempted to provide above and beyond what was initially included in the masterplan and so has included a 400KL stormwater re-use tank as part of stage 2 construction.
Stage 3 (or Stage 2 according to the masterplan document) includes designs for the potential re-purposing of the Rydalmere Bowling Club in line with the masterplan, to create multifunctional space that can be used by the wider community. This is not part of the Office of Sports grant.
This masterplan included significant community consultation from the outset and is very detailed. As a result, the final construction designs varied very little from the adopted masterplan.
In addition, the grant money provided to Council by the Office of Sport contained a specific scope - to upgrade the sporting infrastructure (specifically the three fields, cricket nets, and lighting) and Council’s Community Infrastructure Strategy supports the endowment of full size fields, and the maximum number of practice nets wherever possible. The space onsite is limited, so in order to fulfil as many of these objectives as possible, the configuration of the park was crucial. The final design managed to fit full size soccer fields, and a three lane cricket practice net but there was no alternate configuration that could support this level of infrastructure.
Stage 3 of works will include the initial concept designs for the upgrade of the Rydalmere Park Bowling Club. Council will be seeking the community’s feedback on those early concepts, to guide us in the delivery of a design for a bowling club that suits the current and future needs of the community and all stakeholder groups.
According to the Review of Environmental Factors (REF), there are no listed First Nations heritage sites within the project site or immediately adjacent to the project site. The masterplan referenced Parramatta Aboriginal Cultural Heritage Study (2003), a consultation that occurred in person and online, and feedback was open to all members of the community.
The trees along South Street were removed as part of Stage 2 construction - this was acknowledged on page 32 of the masterplan as a consequence of being able to fit in the full size football fields.
That being said, Council did pass a resolution on 8 July 2019 to propose:
- That all reasonable effort be made during detailed design of the masterplan to remove the minimum number of trees of the remnant Cumberland Plan Woodland on the southern side of Rydalmere Park.
- That Council harvest seed from the existing remnant trees on the southern side of Rydalmere Park to protect and preserve the genetic integrity of existing indigenous vegetation.
- Further, that Council propagate and grow saplings from this seed stock for replanting within Rydalmere Park at the Urban Forest/Indigenous Vegetation Offset area and at other relevant tree planting areas as identified in the masterplan.
As part of the delivery of the detailed design of Stage 2 works, Council hired consultants to produce an Arboricultural Impact Assessment (AIA), Tree Protection Plan (TPP), and Review of Environmental factors (REF).
Where possible, trees have been retained as part of the designs. Unfortunately trees were removed to accommodate the sporting infrastructure.
As a consolation, we have harvested the seeds from the original trees along South Street, and these will be planted in the urban forest at the northern end of the park.
Please find below stock we have ready now and for April 2022:
- 10 x 300mm Glochidion Ferdinandi – more stock available for growing on if required.
- 10 x 300mm Casuarina glauca
- 5 x 300mm Eucalyptus sideroxylon
- 10 x 200mm Eucalyptus sideroxylon- more tubestock available for growing on if required.
- 6 x 300mm – Eucalyptus fibrosa
- 8 x 200mm Eucalyptus botryoides- more tubestock available for growing if required.
- Angophora bakerii and Angophora floribunda, will be available in 200mm- April 2022.

Rydalmere Park lacks significant habitat for threatened species, with the existing vegetation restricted to canopy trees that do not comprise an endangered ecological community.
A Review of Environmental Factors (REF) was undertaken by an Independent Planning Consultant taking into account to the fullest extent possible all matters affecting or likely to affect the environment which includes biodiversity, trees, heritage, noise, air and water quality, traffic, waste, visual and public amenities by the proposed work as required under Part 5 of the EP&A Act.
Subject to the implementation of recommended mitigation measures, the REF has determined that the proposed works will not be likely to have a significant impact on:
- The environment
- Threatened species, populations, ecological communities, or their habitats
- Matters of national environmental significance
New trees will be planted throughout the site to offset the trees that will be removed due to this project and any nests found will be relocated to new trees.
The existing playground and basketball had to be removed to allow for the full size football fields and three lane cricket nets, this forms part of the adopted masterplan design.
A new playground and potential multipurpose court will be delivered as part of stage 3 and 4 of construction, and the community will be consulted to provide feedback on concept designs.
Elements of the original playground (including the timber poles and sandstone blocks) have been salvaged and re-used at River Park playground in Ermington.
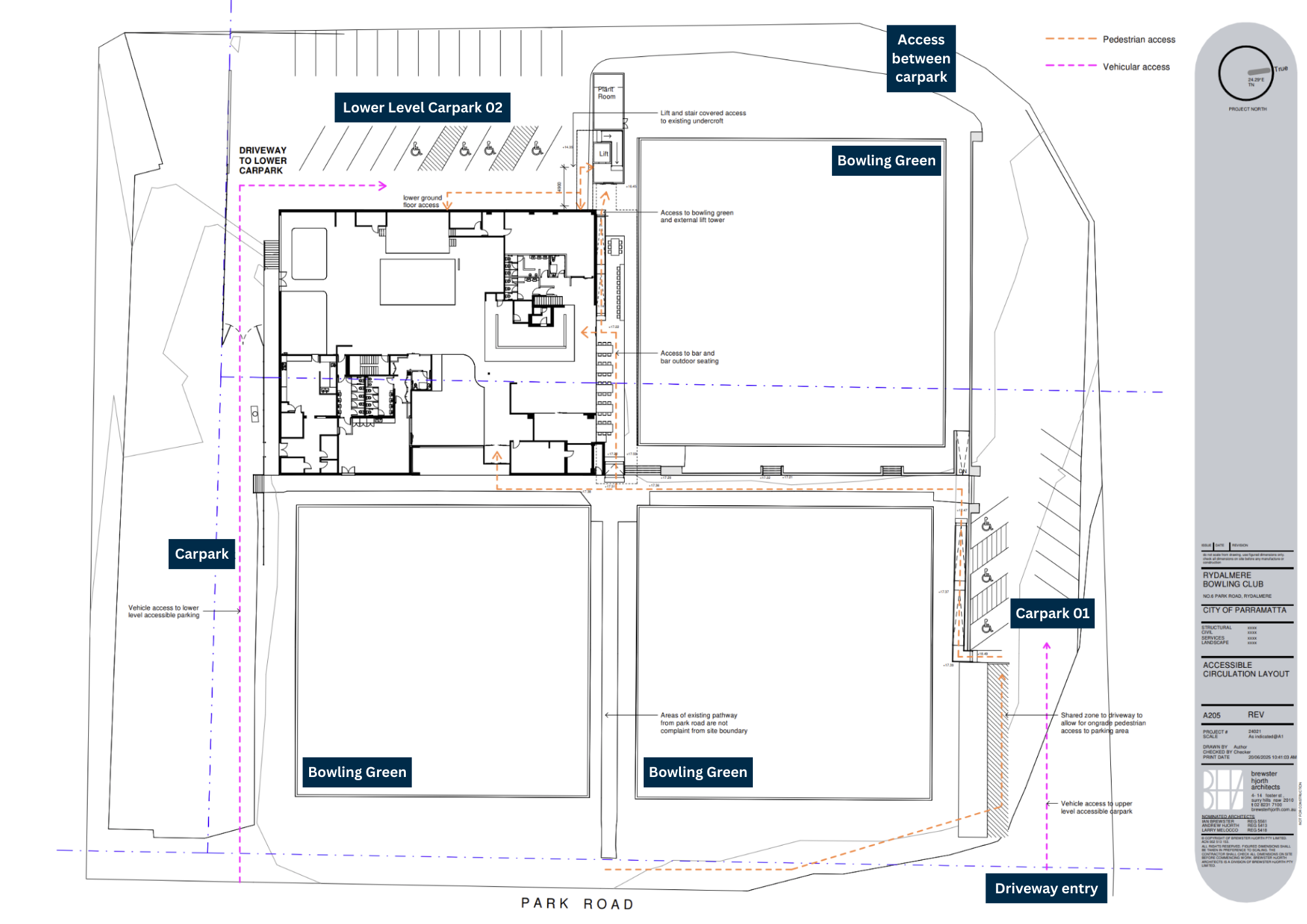
Council is refurbishing the Rydalmere Bowling Club to bring the building up to current standards while creating a welcoming and accessible space for our community to enjoy.
Council is committed to creating inclusive, future-ready spaces that meet the needs of all community members. The Rydalmere Bowling Club Refurbishment upgrades aim to improve access, safety, and usability for everyone. To support this, we are proposing:
- Additional accessible parking bays near the lower-level lift entry
- Clear line marking for accessible parking at the top car park to ensure safe pedestrian access
- Lift access for improved mobility
- A new ramp to enhance entry to the building
- Relocation of the entry door to align with the new ramp
- Upgraded accessible bathroom facilities
Yes, the club will be required to close during the estimated 18-month construction period.
The City of Parramatta was successful in obtaining $5,530,193.15 of Western Sydney Infrastructure Grant (WSIG) Funding, with Council also adding in a $939,671.00 contribution to refurbish the Club.
The $2 billion Western Sydney Infrastructure Grants Program (formerly known as WestInvest) is funding transformational infrastructure projects across Western Sydney. Funded projects will improve the liveability of communities and support economic recovery, making a real difference to the quality of life in 15 Local Government Areas in the region.
For more information see https://www.nsw.gov.au/grants-and-funding/western-sydney-infrastructure-grants-program

