From the earliest days, the changeable nature of the river has also meant risk of flooding. Large parts of the City of Parramatta are susceptible to flash-flooding, and our CBD is the most flash-flood affected major CBD in NSW.
Flash flooding occurs in a matter of hours and can lead to rapid rises in water level. While big floods happened in 1986 and 1988, and a smaller flood took place in 2015, any flash-flood event can cause significant damage and disruption.
In the worst possible flood, known as the Probable Maximum Flood, over 30% of the City of Parramatta could be covered in floodwaters.
Floods affect our community in many ways:
- Accidents and injuries or death
- Homes, businesses and properties flooded and damaged
- Services such as clean water and electricity disrupted
- Creating unsafe conditions for driving or pedestrian activity
- Causing unwanted pollution events
- For many people who live through a flood, normal life is put on hold for months or years.
The City of Parramatta is one of the most flood-affected areas in Australia. Across our Local Government Area, many communities are regularly confronted by flash-flooding. The highly urbanised environment - with fewer green areas to absorb and slow water and increasing areas of hard-stand such as roads and paths, which are impervious to water - make managing flooding difficult.
Tens of thousands of people and businesses are exposed to flooding, with the associated inconvenience, risks to life, and to infrastructure.
The 2024 Parramatta River Flood Study helped to increase the accuracy of information around flooding, and identify risks and potential impacts.
Council is now using the 2024 Parramatta River Flood Study to identify potential hazards and create appropriate planning controls to help reduce the impact of flooding.
Council is also using the study (which covered more than 60% of the Local Government Area) to allocate resources and respond effectively to mitigate flood impacts to help keep our community safe.
Sharing the flood study with State Emergency Services and residents also means Council can focus on planning for flooding and helping our community prepare for the next flood.
Flood Big Ideas takes the information provided by the 2024 Parramatta River Flood Study and proposes to create large-scale flood mitigation infrastructure that would substantially reduce flooding in the CBD and potentially upstream and downstream.
After investigations, three (3) concept designs were presented for the community to consider in late 2025 and early 2026:
- Enhancing the existing Loyalty Road Flood Detention Basin, North Rocks
- Improving the existing McCoy Park Flood Detention Basin, Toongabbie
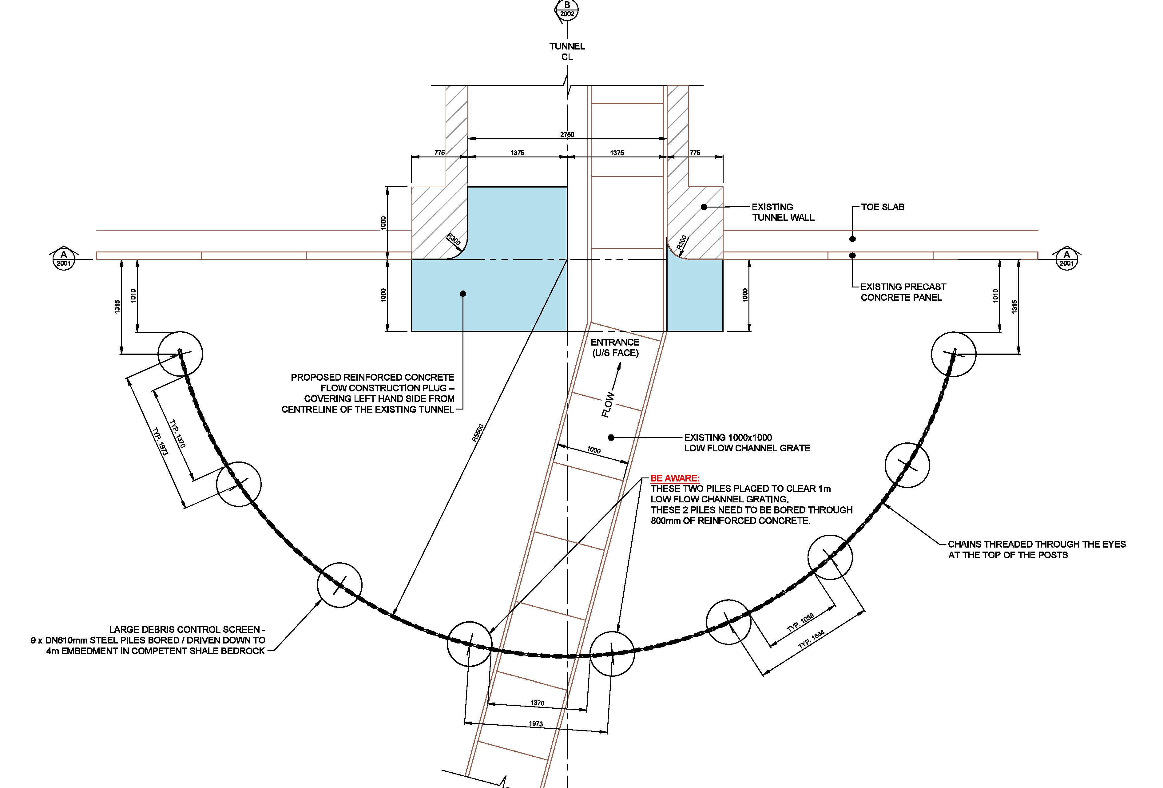
- Rebuilding Charles Street Weir, relocating a pipe beneath the Barry Wilde Bridge, Parramatta CBD, and also removing the existing footbridge underneath Barry Wilde Bridge.
A 1% AEP (Annual Exceedance Probability) flood event is of a size that has a 1% chance of occurring at a particular location in any given year.
This used to be known as a ‘1-in-100-year’ flood, a term which can be misleading as communities could experience several ‘1-in-100-year’ floods within a decade.
As part of this proposal, the existing Charles Street Weir will be removed and replaced with a new weir that will have automatic flood gates that can be opened when a flood is coming and kept closed at all other times. Flood gates are located underneath the weir.
The new weir will be wider – increasing from around 1.5m to 4.8m. This will allow much better access for pedestrians and cyclists crossing the Parramatta River.
The 1970s Barry Wilde Bridge with its celebrated fountain and light display, will remain in place. However, the existing pedestrian bridge underneath the road bridge will be removed.
The Sydney Water pipeline, currently visible alongside the pedestrian bridge, will be relocated underneath the riverbed.
These improvements will substantially speed the movement of floodwaters through the CBD and reduce flooding.
If built, it has been estimated that:
- Flood levels in a 1% AEP flood (formerly known as a 1- in-100-year flood) would be reduced by around 66cm, significantly reducing flood risks in the Parramatta CBD.
- Flood damages in the CBD would be reduced by around $23 million (over 50 years).
- A financial benefit to cost ratio of 1.2 to 1 would be delivered.
Disadvantages of the project
- The cost of the project would be about $18 million
- It would cost around $100,000 per year to maintain
- The project will remove the current low level footbridge underneath Barry Wilde Bridge. However, access across the Parramatta River will still be available via the main Barry Wilde Bridge, via the improved Charles Street Weir crossing, or via the Lennox Bridge close to Riverside Theatres.
With access via Mimosa Avenue, Toongabbie, the large open fields of McCoy Park were reformed to create a detention basin for floodwaters. It currently holds millions of litres of water during a flood, before slowly releasing the floodwaters.
The proposed concept design for McCoy Park is to raise the existing soil and turf levee walls (which have a concrete core) by one (1) metre. Additional two (2) metre high levee walls would be built on the industrial area side of McCoy Park to increase the amount of floodwater that can be (temporarily) stored.
The new levee walls will look exactly like the existing walls with the concrete buried in the middle of the earth mound. Initially, the top of the concrete wall will be visible at the same level as the new earth mound. However, overtime it will be covered and look like McCoy Park’s existing natural grass basin.
If built, it is expected that the upgrade to the Mc Coy Park Flood Detention Basin will:
- Lower floodwaters downstream in Toongabbie Creek resulting in and less flooding in the Toongabbie area with with a 7cm reduction in flood levels in Toongabbie.
- Reduce flooding further downstream, all the way to the Parramatta CBD, with 5cm less water at the Parramatta CBD
- A reduction of around $16 million in downstream flood damages (over 50 years)
- Deliver a financial benefit to cost ratio of 0.5 to 1.
All flood reduction measurements are in the event of a 1% AEP (formerly a 1-in-100-year flood)
Disadvantages of the project
- The cost of the project would be about $31.6 million.
- It would cost around $50,000 per year to maintain.
- The new walls around some parts of McCoy Park basin will make it harder to access the inner parts of the park. However, wherever possible, gates, stairs or ramps will be provided to facilitate access in and out of the park.
Located in Bidjidal Reserve, this concrete basin with its 30m walls is designed to temporarily detain floodwaters heading down Darling Mills Creek during and after storms. Sometimes called a dam, its main purpose is to help protect downstream homes and communities from flooding.
The concept design sees an existing low-flow tunnel through the bottom of the dam wall narrowed, so that water will move more slowly through the tunnel. More water would be held upstream of the wall, and the extra time required to release the water will lower the flood levels downstream.
The narrowed tunnel will still be wide enough for people to walk through during dry weather.
If built, it is expected that the upgrade to the Loyalty Road flood mitigation infrastructure will result in:
- 19cm lower flood levels upstream of the Parramatta CBD in a 1% AEP (formerly known as a 1-in-100-year) flood
- A reduction of around $19 million in downstream flood damages (over 50 years)
- A financial benefit to cost ratio of 16.3 to 1.
Disadvantages of the project
- The cost of the project would be about $1.1 million
- It would cost around $10,000 per year to maintain
- The tunnel at the bottom of the dam wall will be half its current diameter – people will still be able to walk through the tunnel in dry weather, but it will be narrower than it is now.
With a grant from the Australian Government’s Disaster Ready Fund, matched by Council funds, the Flood Big Ideas project is looking at ways to reduce flooding in the Parramatta CBD, and potentially upstream and downstream of the CBD. The project is investigating upgrades to existing infrastructure or building new flood infrastructure that will reduce the impact of flooding.
After reviewing dozens of options, we selected the three (3) best concept designs for the community to consider:
- Enhancing the existing Loyalty Road Flood Detention Basin, North Rocks
- Upgrading the existing McCoy Park Flood Detention Basin, Toongabbie
- Rebuilding Charles Street Weir, relocating a pipe beneath the Barry Wilde Bridge, Parramatta CBD, and removing the existing footbridge underneath Barry Wilde Bridge.
Following community consultation, this project will produce a detailed design for one (1) of these options, and additional funding will be sought to build the infrastructure.
Modelling based on a 1% AEP* flood event shows:
- The Loyalty Road Flood Detention Basin option could reduce flood levels from North Rocks to the Parramatta CBD basin by up to 19cm
- The McCoy Park Flood Detention Basin option could reduce flood levels from Toongabbie all the way to the Parramatta CBD by up to 5cm
- The Parramatta CBD option could reduce flood levels in the CBD by up to 66cm, for around 2km upstream of Charles Street Weir.
*A 1% AEP (Annual Exceedance Probability) flood event is of a size that has a 1% chance of occurring at a particular location in any given year.
This used to be known as a ‘1-in-100-year’ flood, a term which can be misleading as communities could experience several ‘1-in-100-year’ floods within a decade.
Concept designs have been produced for three locations – the Loyalty Road Detention Basin in North Rocks, the McCoy Park Flood Detention Basin in Toongabbie, and the Charles Street Weir in Parramatta CBD. All these locations currently experience flooding, with larger floods being rarer and smaller floods more common.
Construction of flood management infrastructure at any of these three (3) locations would reduce flood levels by between five (5) and 66cm compared with the current flood levels, depending on the location and type of flooding.
The Loyalty Road (North Rocks) and McCoy Park (Toongabbie) flood detention basins would be upgraded to store more floodwater and slow the downstream movement of floodwater.
At the Charles Street Weir in the Parramatta CBD, the proposed solution lets floodwater move through the CBD with less resistance – more water moving through the CBD faster.
The concept for this location sees the pedestrian bridge and infrastructure underneath Barry Wilde Bridge removed, and the Charles Street Weir widened with new larger automatic flood gates installed.
When the Parramatta River is in flood, the gates will be able to be opened before the floodwaters arrive in the CBD allowing more water through and reducing the water levels commonly seen in the CBD when the river is in flood. Currently, the Parramatta River breaks its banks around five (5) times a year.
Potential locations where large-scale infrastructure could be built to substantially reduce flooding were considered across several parts of the City of Parramatta Council area.
Each of the locations and flood reduction scenarios were considered from a cost and effectiveness perspective. Following extensive work by flood specialists, the best three (3) options/scenarios were selected to be taken to ‘concept design’ level (stage one of the project). Technical illustrations and artist impressions form part of this public exhibition.
In the long term, if one (1) or more of the flood management infrastructure concept designs featured in this project were built, this could result in lower insurance costs for the community due to the lower risk of flooding.
Should one (1) of the Flood Big Ideas concept designs proceed to detailed design (Stage 2) and then ‘design and construct’, (Stage 3), properties neighbouring the selected site may experience some disruption.
Council will continue to communicate with residents about this project following community consultation through to completion.
The McCoy Park and Loyalty Road flood detention basin options slow the flow of water along Toongabbie and Darling Mills creeks.
If either of the Loyalty Road or McCoy Park concept designs are built, as they hold up floodwaters, before slowly releasing the water, this would reduce the erosion of natural waterways, particularly along Toongabbie and Darling Mills creeks.
Potential environmental constraints will be considered as part of developing a detailed design for the selected Flood Big Ideas concept.
The concept design for the Charles Street Weir in the Parramatta CBD speeds up water flow by removing barriers between the Charles Street Weir and Lennox Bridge.
While reducing flooding by an estimated 66cm within the CBD section of the Parramatta River, if built, the potential environmental impacts of the concept would be extremely low due the CBD section of the Parramatta River being largely a concrete and steel channel.
Potential environmental constraints will be considered as part of developing a detailed design for the selected Flood Big Ideas concept.
The RiverWalk is a series of pavement artworks commissioned by Council 25 years ago and created by First Nations artist Jamie Eastwood in 2000. The pavement artwork is adjacent to the Parramatta River and extends along 800m of pathway from Parramatta Quay to Lennox Bridge.
If the proposed Charles Street Weir project proceeds, construction of the 4.8m-wide weir would impact a section of the artwork located on the northern foreshore pathway. Consultation with the artist would be undertaken as part of the design process for the new weir.
The Charles Street Weir project is part of a broader long-term vision for ongoing enhancement of the Parramatta River Foreshore in the City’s CBD. Both Council and the NSW Government are investigating the delivery of improvement works along the northern foreshore of the river. This larger vision is likely to further impact the RiverWalk pavement artwork.
As these plans progress, Council would likely commission new public artwork(s) in accordance with the City of Parramatta’s Public Art Policy. Consultation with cultural knowledge holders and relevant stakeholders, including further engagement with artist Jamie Eastwood, would take place. Given this context, there are no plans or allocated funding for the restoration of the existing RiverWalk artwork, and this has been conveyed to the artist.
Other cultural assets in the area, including the heritage interpretation within Charles Street Square, and Ebb and Flow - the artwork projected onto the escarpment across from the ferry wharf - will not be affected by the proposed Charles Street Weir upgrades.
At McCoy Park, the attractions are predominantly the playground area and recreational facilities at the other side of the park. This area isn’t affected by flooding except in the most extreme of possible flood events.
While the wide grassed area of the basin is important environmentally by slowing flood waters and providing habitat, Council’s various cultural heritage and environmental studies have not identified any First Nations or European cultural heritage items in this area.
At the Loyalty Road site, many people are pleased to see increasing amounts of ‘street art’ on some of the flood structures within Bidjidal Reserve. While some murals are attractive, other people object to the ‘tagging’ that also appears.
If this site is selected for further development, depending on funding, some clean-up of the area could take place along with some rehabilitation of bushland.
Council’s various cultural heritage and environmental studies have not identified any First Nations or European cultural heritage items in this area.
A draft flood study for the A’Becketts Creek area is on public exhibition from 9 December 2025 to 6 February 2026. Click here
The new flood model for this catchment area forecasts around 1,500 businesses and homes may be affected by flooding in a 1% AEP* (1-in-100-year) flood.
*A 1% AEP (Annual Exceedance Probability) flood event is of a size that has a 1% chance of occurring at a particular location in any given year.
This used to be known as a ‘1-in-100-year’ flood, a term which can be misleading as communities could experience several ‘1-in-100-year’ floods within a decade.
Council works to reduce the risks of flooding to the community in several ways, including providing Floodsmart, a free early-warning flood service.
Council also works with State Emergency Services (SES) to safely manage any flooding emergency. See our webpages at Flooding | City of Parramatta for more details.
Drainage maintenance and upgrades are undertaken to manage local overland flooding.
Council also regularly performs maintenance on our creeks and the Parramatta River, removing debris, clearing out silt and noxious weeds, replacing bridges and walking tracks, stabilising creek embankments etc. to help manage water flow across our City.
Planning controls are also updated to appropriately manage flood risks as the City of Parramatta grows.
Council is currently creating strategic planning documents for several catchments across the Local Government Area. These studies and plans will investigate whether any other flood mitigation works would help to reduce flooding in each catchment.
These catchment areas are:
- A’Becketts Creek
- Upper Devlins Creek
- Haslams Creek
- Parramatta River.
Once a detailed design of the chosen large-scale flood mitigation infrastructure is produced (Stage 2), additional funding will be sought to build the infrastructure (Stage 3).
Council would procure a specialist engineering consultant under a ‘design and construct’ contract to finalise the design details. The construction of the flood management infrastructure would follow.
Depending on the design, and the chosen site, construction could take up to three (3) years.
Should funding for the next stage of the project not be available in Council’s 2026/27 budget, Council will continue to advocate for funding from the NSW Government and the Australian Government.
With a detailed design ready, more funding channels will be open for Council to lodge grant applications.
Once it has been decided which of the three (3) concept designs to progress to detailed design (consultation Stage 1), it will take about four (4) months to produce a detailed design (Stage 2). This refined design is likely to look a lot like the concept design, but will have much more detail, to enable better understanding of the costs and benefits of the chosen design.
As well as the community having input into selecting a preferred concept design, where possible, any suggested changes to the design, provided via the community consultation process, will be incorporated into the detailed design.
Once a detailed design of the chosen large-scale flood mitigation infrastructure is produced, additional funding will be sought to build the project (Stage 3).
Generally, a ‘design and construct’ contract would be used to finalise design details. The construction of the flood management infrastructure would follow. Depending on the design, this could take up to three (3) years.
The community would be kept informed about any disruption that the construction process might cause, and the project’s progress to completion.
In late-2024, City of Parramatta secured $250,000 in Australian Government funding for a series of flood investigations to reduce flooding in the Parramatta River.
The funding, provided by a National Emergency Management Agency grant, was matched by Council with another $250,000.
The $500,000 is being directed towards development of three (3) concept designs to reduce flooding along the Parramatta River.
This project is investigating modifying existing infrastructure, and/or designing and constructing new infrastructure, to reduce flooding.
Following several reviews, from 14 initial design options, three (3) concept design options are now on public exhibition for community feedback.
Following community consultation, one (1) design will progress to detailed design for further development.
Council will need additional funding for the detailed design to progress to design and construct stage.
In late-2024, City of Parramatta secured $250,000 in Australian Government funding for a series of flood investigations to reduce flooding in the Parramatta River. The funding, provided by a National Emergency Management Agency grant, was matched by Council with another $250,000.
The $500,000 is being directed towards development of three (3) concept designs to reduce flooding along the Parramatta River. This project is investigating modifying existing infrastructure, and/or designing and constructing new infrastructure, to reduce flooding.
Following several reviews, from 14 initial design options, three (3) concept design options are now on public exhibition for community feedback. Following community consultation, one (1) design will progress to detailed design for further development.
Council will need additional funding for the detailed design to progress to design and construct stage.
Should funding for the next stage of the project not be available in Council’s 2026/27 budget, Council will continue to advocate for funding from the NSW Government and the Australian Government.
With a detailed design ready, more funding channels will be open for Council to lodge grant applications.
To speak with our flood team, please call Council on 02 9806 5050 during business hours (Monday - Friday, 8:30am - 4:30pm) or email catchment@cityofparramatta.nsw.gov.au.
If you need assistance providing feedback, or you would like information supplied in another language or format, please contact Council's Community Engagement Team via 1300 617 058 or participate@cityofparramatta.nsw.gov.au.
If you would like to speak to someone over the phone in another language, call TIS National on 131 450 for a free interpreting service. Let them know you want to speak to City of Parramatta Council and your chosen language and they will connect you.
市议会致力于确保每个人都能获得所需要的信息。如果您需要以其它语言或格式获取信息,请致电 1300 617 058 或发送电邮至 participate@cityofparramatta.nsw.gov.au
如果您希望以其它语言进行电话交谈,请致电 131 450 联系 TIS 全国服务中心获取免费传译服务。告诉他们您想与 Parramatta 市议会通话和您选用的语言,他们就会为您接通。
काउंसिल यह सुनिश्चित करने के लिए प्रतिबद्ध है कि सभी लोगों को अपनी ज़रूरत की जानकारी सुलभ हो। अगर आप किसी अन्य भाषा या फॉर्मेट में जानकारी चाहते/चाहती हैं, तो कृपया 1300 617 058 पर कॉल करें या participate@cityofparramatta.nsw.gov.au पर ईमेल भेजें
अगर आप फ़ोन पर किसी अन्य भाषा में बात करना चाहते/चाहती हैं, तो निःशुल्क दुभाषिया सेवा के लिए 131 450 पर TIS National को कॉल करें। उन्हें बताएं कि आप सिटी ऑफ़ पैरामाटा काउंसिल से अपनी चुनी हुई भाषा में बात करना चाहते/चाहती हैं और वे आपको कनेक्ट करेंगे।
카운슬은 모든 사람이 필요한 정보를 이용할 수 있도록 최선을 다해 지원합니다. 다른 언어나 형식으로 된 정보를 원하시면‚ 전화 1300 617 058번 또는 이메일 participate@cityofparramatta.nsw.gov.au로 연락하십시오.
다른 언어로 전화 문의를 원하시면, 통번역 서비스(TIS National) 전화 131 450번으로 연락해 무료 통역을 이용하십시오. 파라마타 시 카운슬과 통화를 원한다고 말하고 해당 언어를 선택하시면 연결됩니다.
يلتزم المجلس بالتأكد من إمكانية وصول الجميع إلى المعلومات التي
يحتاجونها. إذا كنت ترغب في الحصول على معلومات بلغة أخرى أو نسق
آخر، يُرجى الاتصال على الرقم 1300617058 أو إرسال رسالة إلى
البريد الإلكتروني
participate@cityofparramatta.nsw.gov.au
إذا كنت ترغب في التحدث إلى أحد الموظفين عبر الهاتف بلغة أخرى،
TIS National اتصل بـ
على الرقم
131450
للحصول على خدمة ترجمة
مجانية. اخبرهم بأنك تريد التحدث إلى مجلس مدينة باراماتا وحدِّد لهم لغتك
المختارة وسوف يصلونك بالمجلس هاتفياً














